车库演示视频
设备概述:
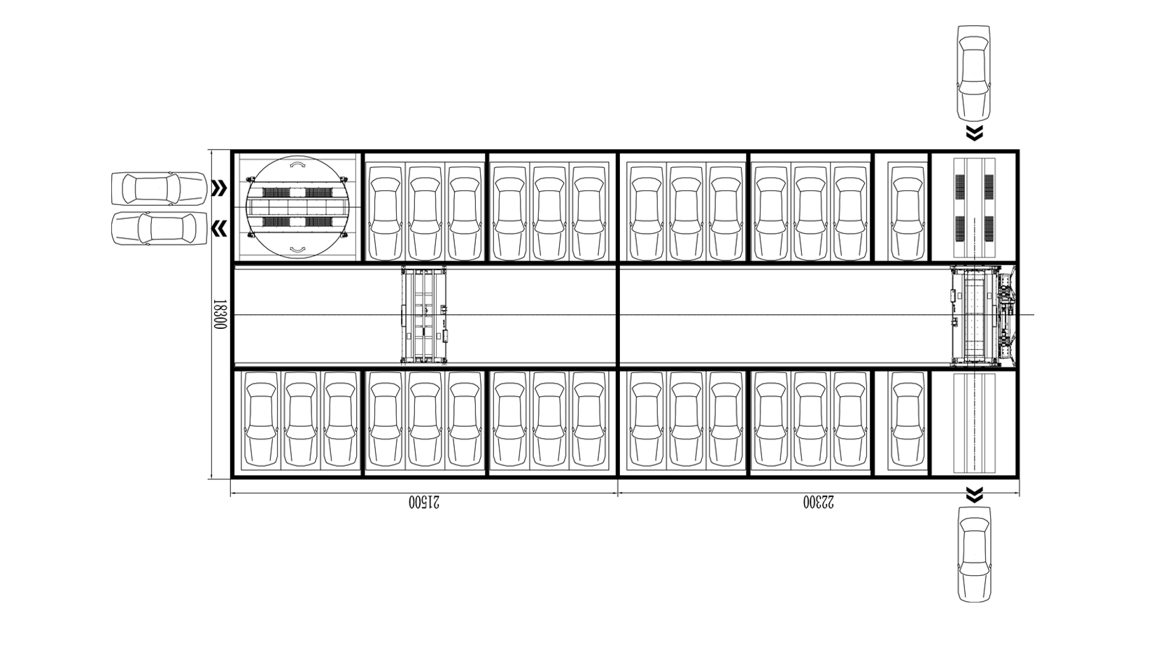
该设备通过固定位置的升降机实现汽车的竖直移动。同一层上,通过横移台车实现汽车的横向移动,通过载车板式智能搬运器实现汽车的纵向移动,实现多层车辆的同时存取。该设备是一种自动化、大型仓储化立体车库,容车密度大,存取车快捷,使用范围广,可根据场地不同,选择不同类型的升降机及出入口装置,例如双板交换式升降机、无机房贯通式升降机、巷道中置升降机、巷道端置升降机等。
该设备运行方式可分为单板式和双板交换式;其中,双板交换式无需等待车板的存取,可实现直接存取车,提高了存取车效率,节省了存取车时间;另外平面移动类(载车板式)机械停车设备每个车位都可加装充电桩,边停车边充电,方便快捷;在车辆轮胎无气的情况下能安全无损地将车辆搬运出车库;采用一车一板,能够起到很好的防滴漏作用;能适应不同轴距的车辆。
技术特点及适用范围:
1、设备安全、可靠、自动化程度高;
2、多层车辆同时存取,效率高,空间利用率高;
3、可实现刷卡、按键、指纹识别、刷脸等多种存取车方式,方便快捷,科技化程度高;
4、存取车辆全时段实时监控,安全无忧;
5、适用范围广,多用于地上或地下停车容量较大的场地。
设备图例

查看大图

查看大图

查看大图
技术参数




