
巷道堆垛
车库演示视频
设备概述:
该设备采用先进计算机控制,是一种集机、光、电、自动控制为一体的全自动化机械式智能停车设备;采用以巷道堆垛机将进到搬运器的车辆水平且垂直移动到存车泊位,并用存取机构存取车辆。
技术特点及应用范围:
1、可根据场地特点及停车需求实现地上或地下的布置形式;
2、自动化程度高,广泛应用于商场、医院、景区、企事业单位及大型公用停车场等多种场所;
3、平稳高效的堆垛方式、先进的交换技术,车辆超长超高等一系列安全检测系统使整个过程安全可靠、快捷方便。
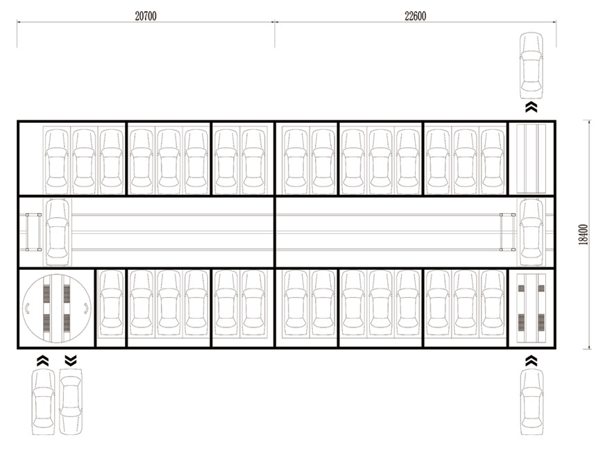
设备图例

查看大图

查看大图
技术参数



